Back to Search | WestWind Business Center

WestWind Business Center

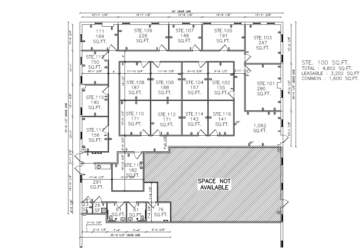
6306 Iola Avenue Suite 100, Lubbock, TX, USA

  • Square Feet: 3,202
  • Creative Office | Executive Office | Office | Traditional Office

Located in the highly regarded Iola Business Park, this office space offers a professional and flexible environment ideal for small businesses.​ With 18 separate suites, your company will enjoy privacy while being part of a dynamic business community.​ **Building Highlights** Flexible Suite Options: Choose from 18 separate suites ranging in size to suit your business needs, whether you're a small startup or a growing team. Shared Amenities: Benefit from a shared break room and waiting area, providing a comfortable space for your team and clients. Convenient Location: Iola Business Park offers easy access to Highway 62/82 & Loop 289 ensuring a central and accessible location for both employees and clients. Professional Atmosphere: The clean and modern facilities provide a professional setting for businesses to thrive. **Building Amenities** Electronic Directory On-site Parking Professional Common Areas **Lease Terms** Gross Lease with all expenses included in one simple payment. Flexible Terms tailored to your business's needs. Contact us today to schedule a tour of Iola Business Park and secure your space in this highly sought-after location. With flexible leasing options and professional amenities, this is the perfect setting to grow your business!


Need Fast Answers?

Don't hesitate to get in touch. We're happy to answer any questions you may have.

Call Us: 806.794.1492

Have any questions?

  • This field is for validation purposes and should be left unchanged.